Mille-Isles J0R1A0
Maison à étages | MLS: 25161836
Cadre enchanteur, nature et tranquillité à deux pas de la
ville!
Propriété chaleureuse nichée dans un décor naturel unique :
entourée d'arbres matures, avec un ruisseau à l'entrée et
un magnifique bassin artificiel avec chute d'eau.
Maison solide et bien construite sur 3 étages, incluant un
garage détaché et un atelier d'ébénisterie -- parfait pour
les passionnés de bricolage ou de création.
Emplacement idéal : à seulement 1 minute de Saint-Jérôme, à
3 minutes du Marché Tradition, de la Boucherie Deschênes,
d'une école primaire et d'une garderie. Montréal est
accessible en 30 minutes.
Le calme de la forêt, tout en profitant des services à
proximité. Une opportunité rare à ne pas manquer!
Inclus : Poêle (plaque cahuffante), four, lave-vaisselle, réservoir d'eau chaude, hotte de poêle, balayeuse centrale, stores, lustres, ventilateurs de plafond, trois thermopompes, système de gicleurs pour l'arrosage du gazon, deux poêles à bois
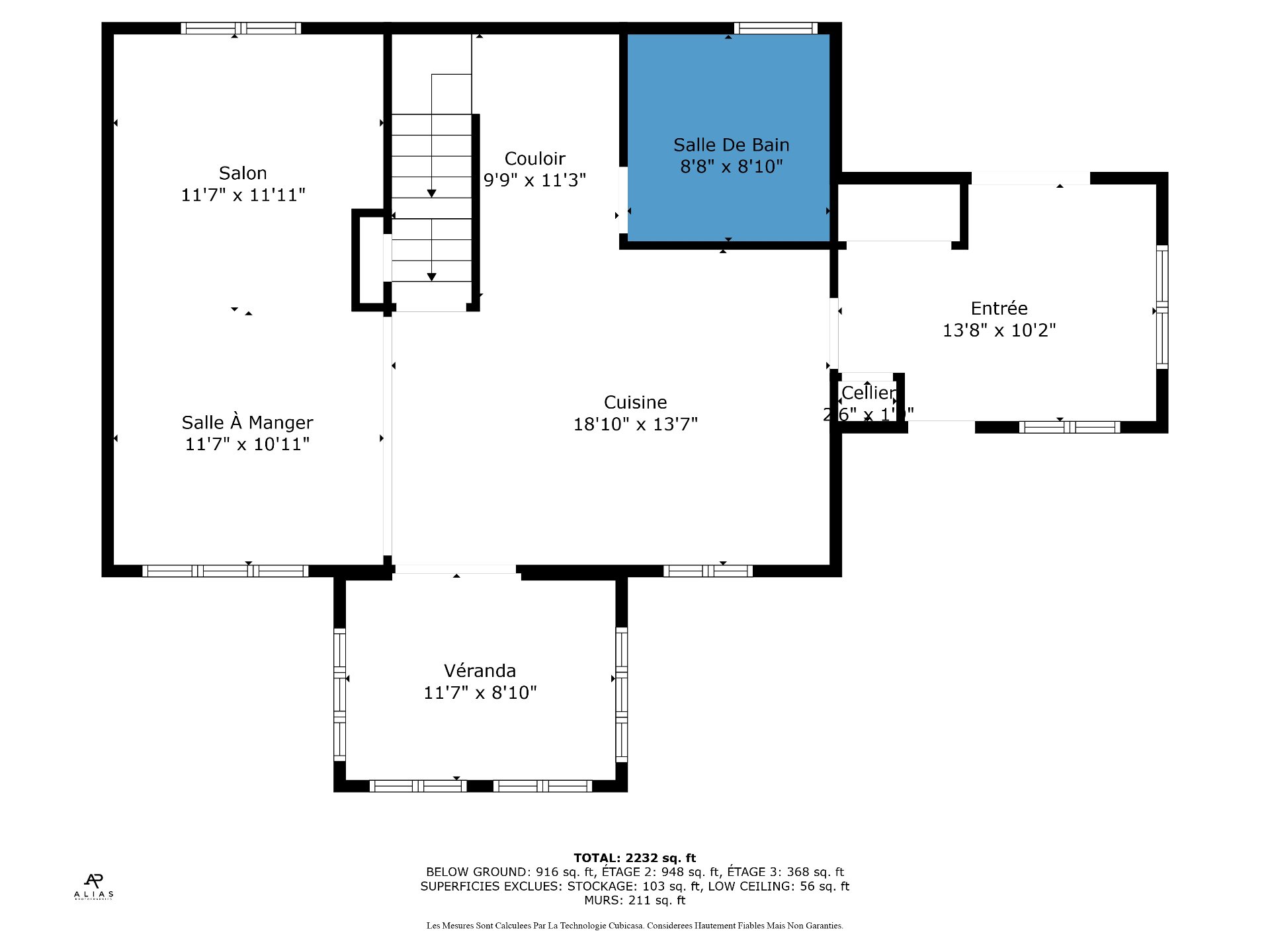
| Chambre | Dimensions | Niveau | Revêtement |
|---|---|---|---|
| Hall d'entrée | 13.8 x 10.2 P | Rez-de-chaussée | Céramique |
| Cuisine | 18.10 x 13.7 P | Rez-de-chaussée | Céramique |
| Salon | 11.7 x 11.11 P | Rez-de-chaussée | Bois |
| Salle à manger | 11.7 x 10.11 P | Rez-de-chaussée | Bois |
| Véranda | 11.7 x 8.10 P | Rez-de-chaussée | Bois |
| Salle de bains | 8.8 x 8.10 P | Rez-de-chaussée | Céramique |
| Chambre à coucher principale | 12.3 x 10.5 P | 2ième étage | Bois |
| Chambre à coucher | 10.2 x 10.9 P | 2ième étage | Bois |
| Salle d'eau | 2.5 x 4.1 P | 2ième étage | Céramique |
| Salle familiale | 25.4 x 12.9 P | Sous-sol | Céramique |
| Cuisine | 13.8 x 10.2 P | Sous-sol | Céramique |
| Chambre à coucher | 11.7 x 11.2 P | Sous-sol | Tapis |
| Rangement | 11.7 x 8.11 P | Sous-sol | Tuiles |
| Salle de bains | 6.0 x 11.3 P | Sous-sol | Céramique |
| Sous-sol | 6 pieds et plus, Totalement aménagé |
|---|---|
| Stationnement | À l'abri, Au garage, Extérieur |
| Particularités | Aucun voisin à l'arrière |
| Fondation | Béton coulé, Bloc de béton |
| Proximité | Cegep, École primaire, École secondaire, Garderie/CPE, Golf, Hôpital, Parc-espace vert, Piste cyclable, Ski de fond |
| Système d'égouts | Champ d'épuration, Fosse septique |
| Aménagement du terrain | Clôturé, Terrain/cour bordé de haies |
| Énergie pour le chauffage | Électricité |
| Équipement disponible | Installation aspirateur central, Thermopompe murale |
| Topographie | Plat |
| Mode de chauffage | Plinthes à convection, Plinthes électriques |
| Foyers-poêles | Poêle à bois |
| Approvisionnement en eau | Puits artésien |
| Zonage | Résidentiel |
| Toiture | Tôle |
Cette inscription est présentée en collaboration avec EXP AGENCE IMMOBILIÈRE